Sturges Road, Bognor Regis
Property Features
- 3 Storey Period property
- 4 Bedroom semi-detached house
- Sunny, low maintenance garden
- Top floor master bedroom with ensuite shower room
- Many original features
- Coveniently located on edge of town
- Ideal family home or investment opportunity
- EPC Rating C
Property Summary
SALE AGREED BY CLARKES: Located on the edge of Bognor Regis town centre is this CHAIN FREE, REFURBISHED and beautifully presented four-bedroom semi-detached home with THREE RECEPTION ROOMS, modern fitted kitchen with integrated appliances, and TWO BATHROOMS. Original features such as open fireplaces, wood panelling, and high ceilings complement the home's warm and welcoming atmosphere. Externally there is a sunny, low-maintenance GARDEN.
Full Details
Our Comments
Refurbished to an excellent standard in 2025, is this beautifully presented four-bedroom terrace home, perfectly positioned on the edge of town - it's just far enough from the hustle and bustle for peace and quiet, yet close enough to enjoy the convenience of local shops, bars, restaurants, cinema, and excellent commuter links. The train station is just a few moments away.
This three-storey period property is brimming with character and natural light, offering a flexible and spacious layout ideal for families, multi-generational living, or savvy investors seeking a house of multiple occupancy (HMO).
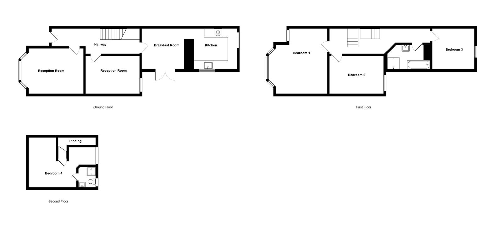
On the ground floor, you'll find three versatile reception rooms, perfect for entertaining or relaxing, alongside a stylish, modern kitchen fitted with integrated appliances and quartz work tops. A charming breakfast room opens directly onto a sunny, low-maintenance garden - a delightful space to enjoy outdoor living with minimal upkeep. Ample built-in storage throughout adds to the practicality of this home.
Upstairs on the first floor, there are three generous bedrooms, all thoughtfully laid out and full of character. The spacious family bathroom includes both a shower and a bathtub, offering a perfect retreat at the end of the day.
A staircase leads to the top floor, where you'll find a large fourth bedroom with its own en-suite shower room — ideal as a guest suite, master bedroom, or private space for a teenager or live-in relative.
Extensive renovations included rewiring, new heating pipework & radiators, wood panelling, integral appliances, induction hob, front door, and course all the decorative presentation that meets the eye such as wooden panelling to the main bedroom. And yet, the property still retains original features such as open fireplaces, wood panelling, and high ceilings. All complemented by the home's warm and welcoming atmosphere.
Whether you're looking for a forever family home or a strong investment opportunity, we think that this unique and charming property will tick all the boxes. Viewing is highly recommended!
Entrance Hallway - 6.32m x 1.7m (20'8" x 5'6")
Reception Room One - 4.32m x 3.28m (14'2" x 10'9")
Reception Room Two - 3.94m x 2.74m (12'11" x 8'11")
Dining Room - 3.07m x 3m (10'0" x 9'10")
Kitchen - 3m x 3m (9'10" x 9'10")
First Floor Landing - 3.89m x 0.84m (12'9" x 2'9")
Bedroom One - 4.62m x 4.34m (15'1" x 14'2")
Bedroom Two - 3.91m x 2.77m (12'9" x 9'1")
Bedroom Three - 3.02m x 3.02m (9'10" x 9'10")
Family Bathroom - 3.18m x 2.03m (10'5" x 6'7")
Second Floor Landing - 0.66m x 0.79m (2'1" x 2'7")
Bedroom Four - 3.61m x 1.96m (11'10" x 6'5")
En-Suite Shower Room - 1.85m x 1.24m (6'0" x 4'0")
Material Information
Council Tax: Arun District Council Band D
Property Type: Terraced House
Property Construction: Standard
Electricity, Water, Drainage Supply: Mains
Heating: Gas Central
| Broadband | Availability | Max Down | Max Up |
| Standard | ✓ | 16 mbps | 1 mbps |
| Superfast | ✓ | 80 mbps | 20 mbps |
| Ultrafast | ✓ | 1800 mbps | 1000 mbps |
| Mobile | Indoor | Outdoor | ||
| Voice | Data | Voice | Data | |
| EE | Variable | Variable | Good | Good |
| Three | Good | Good | Good | Good |
| O2 | Good | Good | Good | Good |
| Vodafone | Good | Good | Good | Good |
AML Money Laundering Checks

