The Hartings, Bognor Regis, PO22 6QF
Property Features
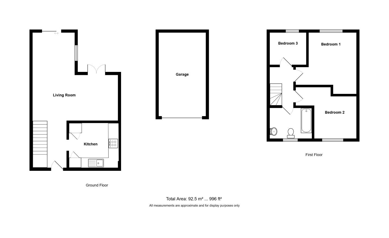
- 3 Bedroom end of terrace house
- Spacious living and dining area
- Upstairs family bathroom
- Enclosed rear garden
- Garage in compound
- Close to local schools and shops
- EPC Rating D
Property Summary
SALE AGREED BY CLARKES: This spacious 3 BEDROOM END OF TERRACE house is located in a RESIDENTIAL AREA CLOSE TO SHOPS, SCHOOLS AND TRANSPORT LINKS. The property benefits from an ENCLOSED REAR GARDEN and GARAGE in nearby compound offering additional storage or parking.
Full Details
Our Comments
Situated in a highly sought-after area of Flansham, Felpham, this deceptively spacious three-bedroom end of terrace house offers an excellent opportunity for both first-time buyers and investors alike.
The ground floor features a spacious living and dining area, providing the perfect setting for relaxing or entertaining, along with a separate kitchen.
Upstairs, there are three well-proportioned bedrooms and a family bathroom, making this a practical home for families or professionals.
Outside, the property benefits from an enclosed rear garden, ideal for outdoor dining or children’s play, and a nearby garage offering additional storage or parking.
Located in a highly desirable residential area, close to local schools, shops, and transport links, this home combines comfort, convenience, and great investment potential.
Early viewing is highly recommended.
Living Room - 5.44m x 5.61m (17'10" x 18'4")
Kitchen - 3.23m x 3m (10'7" x 9'10")
Bedroom 1 - 3.34m x 3.04m (10'11" x 9'11")
Bedroom 2 - 2.81m x 2.68m (9'2" x 8'9")
Bedroom 3 - 2.03m x 2.33m (6'7" x 7'7")
Bathroom - 1.93m x 2.69m (6'3" x 8'9")
Council Tax: Arun District Council Band C
Property Type: Purpose built house
Property Construction: Standard
Electricity, Water, Drainage Supply: Mains
Heating: Gas Central
| Broadband | Availability | Max Down | Max Up |
| Standard | ✓ | 13 mbps | 1 mbps |
| Superfast | ✓ | 79 mbps | 20 mbps |
| Ultrafast | ✓ | 1000 | 1000 |
| Mobile | Indoor | Outdoor | ||
| Voice | Data | Voice | Data | |
| EE | Limited | Limited | Good | Good |
| Three | Limited | Limited | Good | Good |
| O2 | Limited | Limited | Good | Good |
| Vodafone | Limited | Limited | Good | Good |

