Uppark Way, Felpham, West Sussex, PO22 6QQ
Property Features
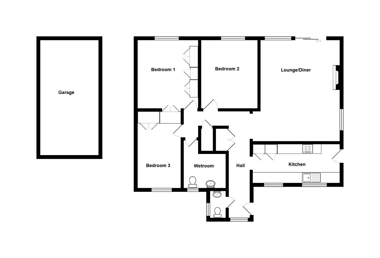
- 3 Bedroom detached Bungalow
- Set on a generous plot
- Modern fitted kitchen
- Open plan living/dining area
- Enclosed rear garden
- Garden workshop/office
- EPC Rating B
Property Summary
SALE AGREED BY CLARKES: This 3 BEDROOM DETACHED BUNGALOW is set on a GENEROUS PLOT in a secluded position in the sought after FLANSHAM PARK. The property offers a WET ROOM with additional, separate WC. The MODERN FITTED KITCHEN includes BUILT IN appliances and leads to a PRIVATE AND ENCLOSED rear garden.
Full Details
Our Comments
Tucked away in a peaceful and highly sought-after corner of Flansham Park, Felpham, this delightful three-bedroom detached bungalow offers an exceptional blend of space, privacy, and comfort. Set on a surprisingly generous plot, the property enjoys a secluded position that creates a true sense of tranquillity, while still being within easy reach of local amenities, schools, and transport links.
Upon entering, you’re welcomed by a spacious and inviting entrance hall that sets the tone for the rest of the home. The accommodation features three well-proportioned double bedrooms, a wet room, and a convenient separate cloakroom.
The heart of the home is the impressive open plan living and dining area, offering a bright and versatile space ideal for both relaxing and entertaining. From here, doors open directly onto the enclosed, south-facing rear garden, where you can enjoy a sunny, private retreat throughout the year.
The modern fitted kitchen is appointed with integrated appliances, including a washing machine, dishwasher, and fridge freezer, and provides side access to the exterior of the property.
Outside, the property continues to impress with its detached garage. The rear garden is both private and well-enclosed, featuring an outbuilding with power and lighting, perfect as a workshop, studio, or potential home office.
This charming bungalow offers an enviable combination of space, seclusion, and modern convenience - a rare find in such a desirable location.
Early viewing is highly recommended.
Lounge Diner - 5.22m x 4.07m (17'1" x 13'4")
Bedroom 1 - 3.52m x 3.01m (11'6" x 9'10")
Bedroom 2 - 3.59m x 3.02m (11'9" x 9'10")
Bedroom 3 - 3.39m x 2.23m (11'1" x 7'3")
Kitchen - 4.49m x 2.26m (14'8" x 7'4")
Wet Room - 2.5m x 2.03m (8'2" x 6'7")
Council Tax: Arun District Council Band D
Property Type: Purpose built bungalow
Property Construction: Standard
Electricity, Water, Drainage Supply: Mains
Heating: Gas Central
Parking: Garage
On 06/11/25 information from the Ofcom Website shows:| Broadband | Availability | Max Down | Max Up |
| Standard | ✓ | 9 mbps | 0.9 mbps |
| Superfast | ✓ | 71 mbps | 18 mbps |
| Ultrafast | ✓ | 1000 | 1000 |
| Mobile | Indoor | Outdoor | ||
| Voice | Data | Voice | Data | |
| EE | Variable | Variable | Good | Good |
| Three | Variable | Variable | Good | Good |
| O2 | Unlikely | Unlikely | Good | Good |
| Vodafone | Unlikely | Unlikely | Good | Good |

